Bouwgrond te koop € 373.000

Moorselbaan 529 9300 Aalst 895 m²

Beschrijving

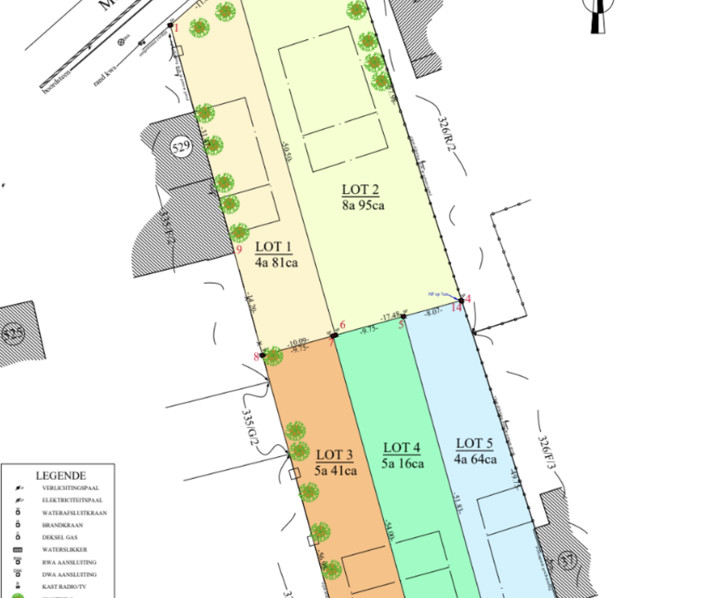
Deze knappe bouwgrond met een oppervlakte van 895m2( LOT 2) is gelegen aan de Moorselbaan tussen nummer 529 en nummer 539 en is geschikt voor het oprichten van een open bebouwing. Topligging aan de Leirekensroute, nabij winkels, aansluiting openbaar vervoer en met een gemakkelijke ontsluiting naar autosnelweg. Perfecte zuid-oostelijke oriëntatie! Verder nog te koop: LOT 1: 481 m2, LOT 3: 541m2, LOT 4: 516m2 en LOT 5: 464m2. Meer info via maarten@verrassendvastgoed.be of 053/42 30 01!

Pandgegevens

Uw contactpersoon

Verhoeven Maarten E: info@verrassendvastgoed.be T: 0474352880