Bouwgrond te koop € 199.800

Beekstraat 39 9300 Aalst 541 m²

Beschrijving

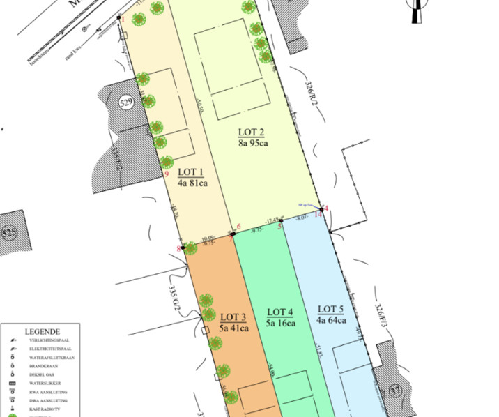
Deze knappe bouwgrond met een oppervlakte van 541 m2( LOT 3) is gelegen aan de Beekstraat tussen nr 37 en 41 en is geschikt voor het oprichten van een half-open bebouwing. Topligging aan de Leirekensroute, nabij winkels, aansluiting openbaar vervoer en met een gemakkelijke ontsluiting naar autosnelweg. Verder nog te koop: LOT 1: 481 m2, LOT 2: 895m2, LOT 4: 516m2 en LOT 5: 464m2. Meer info via maarten@verrassendvastgoed.be of 053/42 30 01!

Pandgegevens

Uw contactpersoon

Verhoeven Maarten E: info@verrassendvastgoed.be T: 0474352880