Bouwgrond te koop € 199.800

Beekstraat 39 9300 Aalst 516 m²

Beschrijving

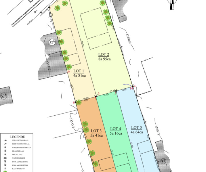
Deze knappe bouwgrond met een oppervlakte van 516m2( LOT 4) is gelegen aan de Beekstraat tussen nr 37 en 41 en is geschikt voor het oprichten van een half-open bebouwing. Topligging aan de Leirekensroute, nabij winkels, aansluiting openbaar vervoer en met een gemakkelijke ontsluiting naar autosnelweg. Verder nog te koop: LOT 1: 481 m2, LOT 2: 895m2, LOT 3: 541m2 en LOT 5: 464m2. Meer info via maarten@verrassendvastgoed.be of 053/42 30 01!

Pandgegevens

Uw contactpersoon

Verhoeven Maarten E: info@verrassendvastgoed.be T: 0474352880