053 42 30 01 info@verrassendvastgoed.be

Verrassend vastgoed

  • 1
  • 2
  • 3
  • 4
Te koop Ref. 7547255
Bouwgrond
Moorselbaan 529
9300 Aalst
€ 373.000
Contacteer ons
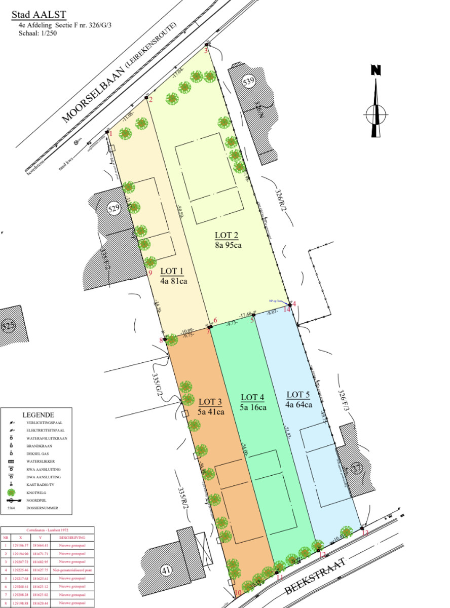
Deze knappe bouwgrond met een oppervlakte van 895m2( LOT 2) is gelegen aan de Moorselbaan tussen nummer 529 en nummer 539 en is geschikt voor het oprichten van een open bebouwing. Topligging aan de Leirekensroute, nabij winkels, aansluiting openbaar vervoer en met een gemakkelijke ontsluiting naar autosnelweg. Perfecte zuid-oostelijke oriëntatie! Verder nog te koop: LOT 1: 481 m2, LOT 3: 541m2, LOT 4: 516m2 en LOT 5: 464m2. Meer info via maarten@verrassendvastgoed.be of 053/42 30 01!

Financieel

Prijs
€ 373.000
Referentie
7547255

Ligging

Buurt
Landelijk
Winkels op
500 m
School op
1.000 m
Openbaar vervoer op
250 m
Autosnelweg op
4.000 m
Sportcentrum op
500 m
Terbeschikkingstelling
Onmiddellijk

Afmetingen

Grondoppervlakte
895 m²
Terreindiepte
58 m

Algemeen

Staat
Uitstekend
Oriëntatie tuin
Zuidoosten

Ruimtelijke ordening

Bestemming
Woongebied met landelijk karakter
Bouwvergunning
Niet meegedeeld
Dagvaarding
Nee
P-score
B
Verkavelingsvergunning
Niet meegedeeld
Voorkooprecht
Nee
O-peil
Niet gelegen in een overstromingsgevoelig gebied

Vraag meer informatie aan