053 42 30 01 info@verrassendvastgoed.be

Verrassend vastgoed

  • 1
  • 2
  • 3
  • 4
  • 5
  • 6
Te koop Ref. 7547768
Bouwgrond
Beekstraat 39
9300 Aalst
€ 199.800
Contacteer ons
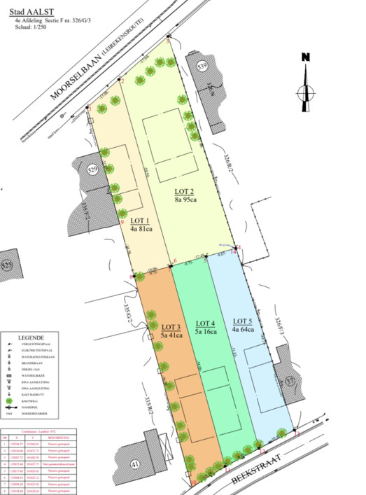
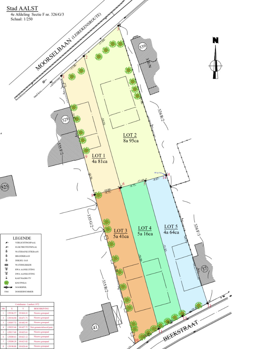
Deze knappe bouwgrond met een oppervlakte van 516m2( LOT 4) is gelegen aan de Beekstraat tussen nr 37 en 41 en is geschikt voor het oprichten van een half-open bebouwing. Topligging aan de Leirekensroute, nabij winkels, aansluiting openbaar vervoer en met een gemakkelijke ontsluiting naar autosnelweg. Verder nog te koop: LOT 1: 481 m2, LOT 2: 895m2, LOT 3: 541m2 en LOT 5: 464m2. Meer info via maarten@verrassendvastgoed.be of 053/42 30 01!

Financieel

Prijs
€ 199.800
Referentie
7547768

Ligging

Buurt
Landelijk
Winkels op
500 m
School op
1.000 m
Openbaar vervoer op
250 m
Autosnelweg op
4.000 m
Sportcentrum op
500 m
Terbeschikkingstelling
Onmiddellijk

Afmetingen

Grondoppervlakte
516 m²
Terreindiepte
54 m

Algemeen

Staat
Uitstekend
Oriëntatie tuin
Noordwesten

Ruimtelijke ordening

Bestemming
Woongebied met landelijk karakter
Bouwvergunning
Niet meegedeeld
Dagvaarding
Nee
P-score
B
Verkavelingsvergunning
Niet meegedeeld
Voorkooprecht
Nee
O-peil
Niet gelegen in een overstromingsgevoelig gebied

Vraag meer informatie aan